TAKUTO GLOBAL
简体
繁體
TAKUTO GLOBAL
精选房源
出售房产
日本租房
房产管理
购房须知
常见问题
联络我们
买卖 | 联络我们
租赁 | 联络我们
管理 | 联络我们
企业 | 联络我们
TOP
ROOM LIST
ブランズタワー大阪本町
wechat
Weibo
LINE
facebook
ブランズタワー大阪本町
走路5分内两车站,近心斋桥商圈,屋龄轻塔楼1SLDK宅都推荐买卖物件
✅走路5分内2站,大阪中心交通便利
✅徒步圈就有商店街、超市和便利商店,生活机能良好
✅赏花名所靱公园就在生活圈,接近大自然赏花散心
✅1LDK收纳充足,设置地暖系统冬天不冻脚,还可养毛小孩
✅摩天塔楼社区公设完善,空中展望室可以把大阪美景尽收眼底
✅24小时有人管理,自动门锁,萤幕式对讲机等多重防护住户居家安全
联络我们
价格
(价内税)
67,800,000円
投资回报率
- %
年收入
- 万円
地址
大阪府大阪市中央区南本町2-5-13
交通
Osaka Metro堺筋線「堺筋本町」站 徒步3分
Osaka Metro御堂筋線「本町」站 徒步4分
-
建筑构造
RC
建造年月
2023年11月
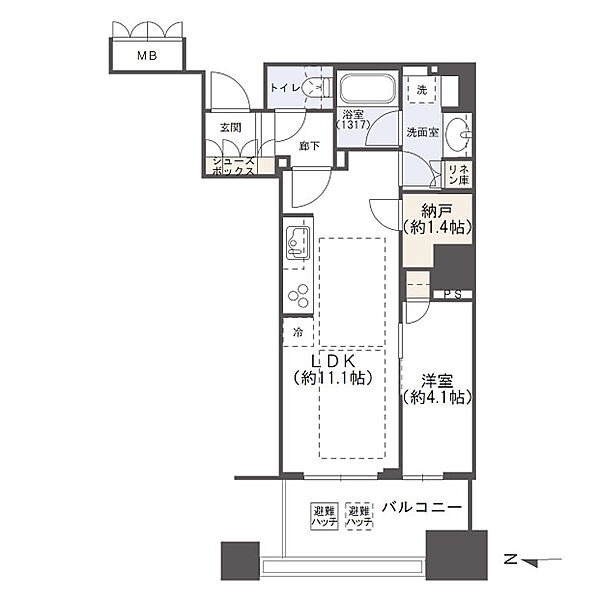
专有建筑面积
44.1 ㎡
物业管理费
12,100 円
修缮基金
7,060 円
土地权利
所有权
所在楼层
16
阳台面积
7.27 ㎡
房产户型
1LDK+S
规划户数
302 户
楼层数
43 階
交易方式
仲介
备注
-
(+81)06-6223-3091
日本总公司 (可中文通话)
接待时间10:00〜18:00 周六日、国定假日除外
联络我们
ID
takutozhao
ID
takutoyu
ID
zhaidujp